APPT T1 PROCHE FACULTES
- 450 € /mois CC
Aperçu
- Appartement
- 25 m²
- 1
- 1
Description
BREST KERINOU, à 10min à pieds des facultés, 400m de l’ISEN, et à proximité des commerces (SUPER U et NETTO à 400m) et transports (bus à 200m/tramway à 700m), dans un petit immeuble.
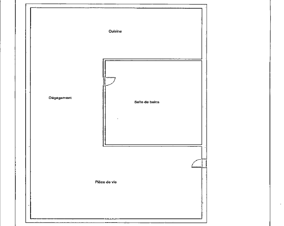
Cet appartement T1 rénové comprend une pièce de vie de plus de 16m², un dégagement, une cuisine aménagée et équipée (plaques, hotte, branchement machine), une salle d’eau avec wc.
Chauffage et eau chaude électrique. Fibre.
La provision sur charges inclus l’eau froide, les communs, la taxe d’ordures ménagères et l’entretien annuel de la VMI.
Libre de suite.
Géorisques
Les informations sur les risques auxquels ce bien est exposé sont disponibles sur le site Géorisques https://www.georisques.gouv.fr
Adresse
-
Ville : BREST
-
Département : Finistère
-
Code postal : 29200
-
Secteur : Kérinou - Saint-Luc
Détails
-
Référence de l'annonce : 3257
-
Prix : 450 € /mois CC
-
Dont provisions sur charges : 30 €
-
Surface du bien : 25 m²
-
Pièce : 1
-
Salle d'eau : 1
-
Année de construction : 1890
-
Type de bien : Appartement
-
Type de transaction : Location
Détails additionnels
-
Frais agence : 276 € TTC
-
Dont honoraires état des lieux : 75 € TTC
-
Dépot garantie : 420 €
-
Surface séjour : 16 m²
-
Nombre WC : 1
-
Chauffage : Individuel Electrique
-
Eau chaude : Ballon électrique
-
Type de dalle : Béton
-
Exposition : Nord-est
-
Nombre d'étages : 2
Caractéristiques
Classe énergétique et émission de Gaz à Effet de Serre
-
Classe énergétique : D
-
Indice de performance énergétique :Indice performance énergétique : 213.5 kWhEP/m²/an
- Consommations énergétiques (en énergie primaire) pour le chauffage, la production d’eau chaude sanitaire et le refroidissement. Unité : kWhEP/m²/an.
-
Classe des émissions de GES : B
-
Indice GES : 8.1 kgeqCO2/m²/an
- Emissions de Gaz à Effet de Serre (GES) pour le chauffage, la production d'eau chaude sanitaire et le refroidissement. Unité : kgeqCO2/m²/an.
Diagnostic de Performance Énergétique (DPE)
Logement économique / peu énergivore
Logement énergivore
Indice des émissions de gaz à effet de serre
Faibles émissions de GES
Émissions de GES élevées






